Haus Berger ist ein idealer Ausgangspunkt für all Ihre Unternehmungen
Es liegt in unmittelbarer Nähe zu den Skiliften “Asitzbahn” und „Steinbergbahn“ wie auch zum Epic Bikepark Leogang.
Im Jahr 2021 wurde die Ferienwohnung komplett renoviert, neu ausgestattet und den Bedürfnissen der Zeit angepasst. Die Essküche bietet viel Platz zum gemütlichen Sitzen und ist gut ausgestattet. Zwei moderne Badezimmer (eines davon mit begehbarer Dusche) tragen zur behaglichen Atmosphäre bei. Wie auch der Blick aus den Fenstern auf die umliegende Bergwelt …
Ein abschließbarer Kellerraum zur Unterbringung von Skiausrüstung oder Fahrrädern ist vorhanden. KFZ Stellplätze sind direkt vor dem Haus.
Diese Unterkunft ist Mitglied von
- Saalfelden Leogang Card
- Saalfelden Leogang Card
Gastgeberinformation
Ausstattung
-
Lage
- Ortsrand
- Pistenrand
- Ruhige Lage
- Waldnähe
- Wiesenlage
- Zentrale Lage
-
Einrichtungen Betrieb
- Brötchenservice
- Einstellplatz für Fahrräder
- PKW-Parkplatz
- Schuhtrockner
- Skiabstellraum
- Terrasse
-
Kinder
- Gitterbett / Babybett
-
Sport / Freizeit
- Garten / Wiese
- Liegen kostenlos
- Liegewiese
-
Links
-
Konditionen
Wir bieten keine Verpflegung an (Selbsversorger-Appartement); Brötchenservice kann über lokale Dienstleister organisiert werden.
Kontakt & Anreise
Appartement Berger
5771 Leogang AT
Anreise
Check in: ab 14:00 Uhr / Check out: bis 10:00 Uhr
Hinweise zur Anfahrt:
Die Auffahrt zum Haus ist im Bereich einer Kurve und kann leicht übersehen werden.
Fotos
Appartements & Preise
Zimmer-Übersicht
-
ab 190,00 €
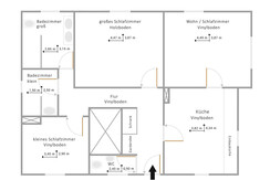
Größe 90 m² Belegung 1 - 8 Erwachsene , 0 - 7 Kinder Zimmer 7 Schlafzimmer 3 Zimmerdetails
Das große familienfreundliche Appartement wurde im Jahr 2021 komplett renoviert.
Ein Baby-Reisebett mit Matratze und ein Tischsitz stehen kostenlos zur Verfügung
Sanitäre Ausstattung
Doppelwaschbecken, Dusche, Bad, WC, Separates WC
Ausstattung Zimmer/Appartement
Backofen, Gefriermöglichkeit, Dunstabzug, Wasserkocher, Haarföhn, Toaster, Nichtraucher Zimmer/App./Whg., Waschmaschinenbenutzung, Heizung, Haustiere nicht erlaubt, Handtücher vorhanden, Elektroherd, Kabelfernsehen, Kaffee-Maschine, Sitzgruppe, Geschirr vorhanden, Kühlschrank, Loggia, Tisch- und Küchenwäsche, Küche, Geschirrspülmaschine, Bettwäsche vorhanden, Ohne Teppich, Terrasse, WiFi, Waschmaschine, Wohnküche
Betten Verteilung
Anzahl Stockbett/en: 2, Anzahl Doppelbett/en: 2
Lage/Blick Zimmer/Appartement
Erdgeschoß / Parterre, Freistehend
verfügbarverfügbar, keine Anreisenur Abreisenicht verfügbar
-
Keine versteckten Kosten
-
Persönliche Beratung
-
Sicher mit SSL-Zertifikat
-
Unabhängige Bewertungen
Mo-Fr 8:00 bis 12:00 und 13:00 bis 17:00 Uhr